Скорость и качество
«Дома 71» строит каркасные дома в Туле под ключ, эти дома популярны благодаря своей безопасности, теплоэффективности и скорости постройки. Для них не нужен мощный фундамент, и цена на эти дома сравнительно невысока. Наша компания разработает для Вас функциональный дом или поможет воплотить в реальность Ваши идеи и решения.
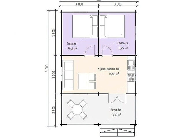
Дом из бруса 6х9. Проект 39 / 49 м2
Стоимость строительства дома
Цена База
0 руб
0
0 руб/м2
0 руб/м2
Цена Стандарт
0 руб
0
0 руб/м2
0 руб/м2
Цена Премиум
0 руб
0
0 руб/м2
0 руб/м2
