ИЗМЕНИТЬ ПЛАНИРОВКУ БУДУШЕГО ДОМА
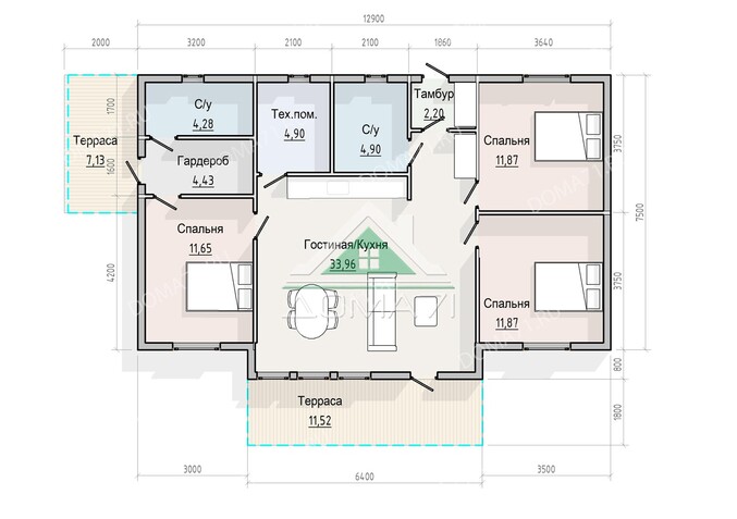
Размеры 12.9x8.3 м
Спальни 35.4 м2
Кухня-гостинная 34 м2
С/У 9.18 м2
Терассы 18.65 м2

Каркасный дом Барнхаус 120 кв.м 12.9×8.3 проект 74 / 109 м2

3 спальни
2 санузла
1 кухня-гостиная
Стоимость строительства дома
Цена База 3 445 000 руб 3445000 RUB
31 690 руб/м2
31 690 руб/м2
Цена Стандарт 4 797 000 руб 4797000 RUB
44 127 руб/м2
44 127 руб/м2
Цена Премиум 5 195 000 руб 5195000 RUB
47 788 руб/м2
47 788 руб/м2
Планировка этажей вашего будущего дома

Вы и вся ваша семья может с комфортом заниматься любимыми делами

Каркасный дом Барнхаус 120 кв.м 12.9×8.3 проект 74

План 1 этажа 108.7 м2

Какая комплектация у будущего дома?

Мы позаботились о том, чтобы вы знали куда был потрачен каждый ваш рубль

Таблицу можно скроллить пальцем ← влево | вправо →
База Стандарт Премиум
Основание дома
Фундамент: Фундамент рассчитывается отдельно Фундамент рассчитывается отдельно Фундамент рассчитывается отдельно
Гидроизоляция основания: В два слоя В два слоя В два слоя
Обвязка: Из бруса 150х150 мм Из бруса 150х150 мм Из бруса 150х150 мм
Лаги с шагом не более 600мм: Обрезная доска 50х200 мм Обрезная доска 50х200 мм Обрезная доска 50х200 мм
Бруски для перекрестного утепления: Не монтируются Не монтируются Брусок 50х50мм
Черновой пол: Доска толщиной 20-25мм Доска толщиной 20-25мм Доска толщиной 20-25мм
Огнебиозащита: Обвязки, лаг и чернового пола Обвязки, лаг и чернового пола Обвязки, лаг и чернового пола
Утепление перекрытия: Нет 150мм 200 мм
Ветро-влагозащита: Не монтируется Мембраны Optima класса А и В Мембраны Optima класса А и В
КАРКАС СТЕН 1-ГО и 2-ГО ЭТАЖА( ИЛИ МАНСАРДЫ)
Силовой каркас стен и перегородок с шагом не более 600мм: Обрезная доска 50х150 мм Обрезная доска 50х150 мм Обрезная доска 50х150 мм
Укосины для увеличения жесткости каркаса: Обрезная доска 50х150 мм Обрезная доска 50х150 мм Обрезная доска 50х150 мм
Ригели для усиления оконных и дверных проемов: Обрезная доска 50х150 мм Обрезная доска 50х150 мм Обрезная доска 50х150 мм
Огнебиозащита каркаса: Нет Всего каркаса Всего каркаса
Межэтажное перекрытие с шагом не более 600мм: Обрезная доска 50х200 мм Обрезная доска 50х200 мм Обрезная доска 50х200 мм
Бруски для перекрестного утепления: Не монтируются Не монтируются Брусок 50х50мм
Утепление внешних стен и перекрытий Isoroc(или Isover): Нет 150мм 200 мм
Утепление внутренних перегородок: Нет 50мм 100 мм
Ветро-влагозащита: Не монтируется Мембраны Optima класса А и В Мембраны Optima класса А и В
Высота потолков: 1 этаж — 2,6 м 1 этаж — 2,6 м 1 этаж — 2,6 м
Кровля
Стропильная система с шагом не более 600 мм: Обрезная доска 40х100 мм Обрезная доска 50х150 мм Обрезная доска 50х150 мм
Огнебиозащита: Нет Всей стропильной системы Всей стропильной системы
Ветро-влагозащита: Подкровельная мембрана Подкровельная мембрана Подкровельная мембрана
Контробрешетка( вентилируемое подкровельное пространство): Брусок 40х40 мм Брусок 40х40 мм Брусок 40х40 мм
Обрешетка: Обрезная доска 20-25мм Обрезная доска 20-25мм Обрезная доска 20-25мм
Поднебесники, карнизы (свесы крыши): Не подшиваются Имитация бруса 16х135 мм Имитация бруса 20х135 мм
Кровельное покрытие: Металлочерепица, толщина стали 0.45 мм. Цвет на выбор заказчика. Металлочерепица, толщина стали 0.45 мм. Цвет на выбор заказчика. Металлочерепица, толщина стали 0.5 мм. Цвет на выбор заказчика.
Вентиляционные решетки в чердачном пространстве: Не монтируются По 1 решетке на каждом фронтоне. По 1 решетке на каждом фронтоне.
Окна, двери
Окна: Не устанавливаются Пластиковые окна Veka или Rehau , двухкамерный стеклопакет 60мм, с отливом, подоконником ПВХ и москитной сеткой Пластиковые окна Veka или Rehau , двухкамерный стеклопакет 72мм, с отливом, подоконником ПВХ и москитной сеткой
Межкомнатные двери: Не устанавливаются Монтаж дверей заказчика Монтаж дверей заказчика
Входная дверь: Не устанавливается Металлическая утепленная 2х0,9 м, Россия Металлическая утепленная 2х0,9 м, Россия
Внутренняя отделка
Отделка стен: Не выполняется Гипсокартон влагостойкий Гипсокартон влагостойкий
Напольное покрытие: Не монтируется ЦСП, OSB, Quick Deck и др.материалы ЦСП, OSB, Quick Deck и др.материалы
Наружная отделка
Отделка стен: ОСП 9мм Имитация бруса сорта АВ 16х135 мм, возможна замена на другой тип отделки Имитация бруса сорта АВ 20х135 мм, возможна замена на другой тип отделки
Вентилируемый фасад: Не монтируется Брусок 20х40мм Брусок 20х40мм
Наличники: Не монтируются Углы и оконные проемы Имитация бруса сорта АВ 16х135 мм Углы и оконные проемы Имитация бруса сорта АВ 20х135 мм
Балкон и Терасса ( при наличии в проекте)
Опорные столбы: Из бруса 100х150 мм Из бруса 100х150 мм Из бруса 100х150 мм
Потолок: Не отделывается Подшивается вагонкой сорта АВ камерной сушки Подшивается вагонкой сорта АВ камерной сушки
Полы: Не монтируются Доска сорта АВ толщиной 27-28 мм камерной сушки Доска сорта АВ толщиной 36 мм камерной сушки
Перила и балясины: Не монтируются Камерной сушки сорта АВ Камерной сушки сорта АВ
Лестница на 2 этаж ( при наличии в проекте)
Тетива: Не монтируется Сухая клееная тетива 300х50мм Сухая клееная тетива 300х50мм
Ступени: Не монтируются Сухие клееные ступени Сухие клееные ступени
Стартовые столбы: Не монтируются Камерной сушки сорта АВ Камерной сушки сорта АВ
Перила и балясины: Не монтируются Камерной сушки сорта АВ Камерной сушки сорта АВ
Дополнительные услуги
Фундамент свайно-винтовой от 3 100 руб за сваю
Фундамент ЖБ сваи от 4 500 руб за сваю
Каркас из сухой строганной доски от 2 000 руб/кв.м
Покраска дома в один слой от 250 руб/кв.м
Электрика от 75 000 руб
Отопление от 140 000 руб
Канализация от 45 000 руб
Посмотрите, что говорят о нас наши реальные клиенты
Отзыв о строительстве дома
Отзыв о строительстве барнхауса
Отзыв о строительстве каркасного дома
Почему выбирают Дома 71
Скорость и качество
«Дома 71» строит каркасные дома в Туле под ключ, эти дома популярны благодаря своей безопасности, теплоэффективности и скорости постройки. Для них не нужен мощный фундамент, и цена на эти дома сравнительно невысока. Наша компания разработает для Вас функциональный дом или поможет воплотить в реальность Ваши идеи и решения.
Проверенный временем застройщик
Наша компания уже 10 лет строит каркасные дома в Туле под ключ. Строим в семейную и сельскую ипотеку от 3%. Каркасные дома, изготавливаемые по финской технологии, являются экологически чистыми, тёплыми, не горючими и влагоустойчивыми. При строительстве каркасных домов используются специальные безвредные пропитки.
Строительная компания «Дома 71» гарантирует фиксированные сроки строительства дома в Туле и Тульской область. С заказчиком заключается договор, в котором указывает дата сдачи каждого этапа строительства загородного дома или коттеджа. возможность контролировать ход строительства в течение реализации проекта.
Давайте обсудим ваш проект

Заполните форму ниже и мы свяжемся с вами в ближайшее время для ответа на все ваши вопросы.

Прикрепить файл
Заявка еще не отправлена
Дома 71
Контакты
Наш офис
г. Тула, ул. Жуковского, 58

Визит в офис только по предварительному согласованию с нашим менеджером по телефону!

Электронная почта
Время работы

По договоренности (требуется предварительный звонок)