ИЗМЕНИТЬ ПЛАНИРОВКУ БУДУШЕГО ДОМА
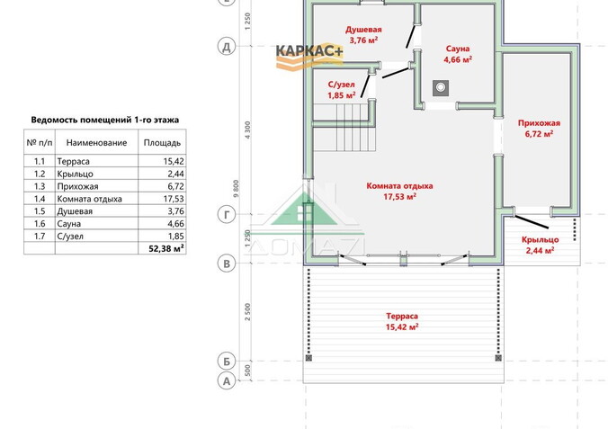
Размеры 10x7 м
Терассы 15.42 м2

Баня каркасная 10х7 из сухой строганной доски / 52 м2

1 санузел
Комната отдыха
Стоимость строительства дома
Цена База 1 170 500 руб 1170500 RUB
22 346 руб/м2
22 346 руб/м2
Цена Стандарт 0 руб 0 RUB
0 руб/м2
0 руб/м2
Цена Премиум 0 руб 0 RUB
0 руб/м2
0 руб/м2
Планировка этажей вашего будущего дома

Вы и вся ваша семья может с комфортом заниматься любимыми делами

Баня каркасная 10х7 из сухой строганной доски

План 1 этажа 52.38 м2

Какая комплектация у будущей бани?

Мы позаботились о том, чтобы вы знали куда был потрачен каждый ваш рубль

Таблицу можно скроллить пальцем ← влево | вправо →
База Стандарт Премиум
Основание бани
Фундамент: Фундамент рассчитывается отдельно Фундамент рассчитывается отдельно Фундамент рассчитывается отдельно
Гидроизоляция основания: В два слоя В два слоя В два слоя
Обвязка: Из бруса 100х150 мм Из бруса 100х150 мм Из бруса 100х150 мм
Лаги с шагом не более 600мм: Обрезная доска 40х150 мм Обрезная доска 40х150 мм Обрезная доска 40х150 мм
Черновой пол: Доска толщиной 20-25мм Доска толщиной 20-25мм Доска толщиной 20-25мм
Огнебиозащита: Нет Обвязки, лаг и чернового пола Обвязки, лаг и чернового пола
Утепление перекрытия: Нет 50мм 100 мм
Ветро-влагозащита: Не монтируется Мембраны Optima класса А и В Мембраны Optima класса А и В
КАРКАС СТЕН 1-ГО и 2-ГО ЭТАЖА( ИЛИ МАНСАРДЫ)
Силовой каркас стен и перегородок с шагом не более 600мм: Обрезная доска 40х100 мм Обрезная доска 40х100 мм Обрезная доска 40х100 мм
Укосины для увеличения жесткости каркаса: Обрезная доска 20-25мм Обрезная доска 20-25мм Обрезная доска 20-25мм
Ригели для усиления оконных и дверных проемов: Обрезная доска 20-25мм Обрезная доска 20-25мм Обрезная доска 20-25мм
Огнебиозащита каркаса: Нет Обвязки, лаг и чернового пола Всего каркаса
Межэтажное перекрытие с шагом не более 600мм: Обрезная доска 40х150 мм Обрезная доска 40х150 мм Обрезная доска 50х200 мм
Ветро-влагозащита: Не монтируется Мембраны Optima класса А и В Мембраны Optima класса А и В
Утепление внешних стен и перекрытий Isoroc(или Isover): Нет 50мм 100 мм
Утепление внутренних перегородок: Нет Нет 50 мм
Высота потолков: 1 этаж — 2,5 м, 2 этаж — 2,2 м 1 этаж — 2,5 м, 2 этаж — 2,2 м 1 этаж — 2,5 м, 2 этаж — 2,2 м
Кровля
Стропильная система с шагом не более 600 мм: Обрезная доска 40х100 мм Обрезная доска 40х100 мм Обрезная доска 40х100 мм
Огнебиозащита: Нет Нет Всей стропильной системы
Ветро-влагозащита: Подкровельная мембрана Подкровельная мембрана Подкровельная мембрана
Контробрешётка( вентилируемое подкровельное пространство): Брусок 40х40 мм Брусок 40х40 мм Брусок 40х40 мм
Обрешетка: Обрезная доска 20-25мм Обрезная доска 20-25мм Обрезная доска 20-25мм
Поднебесники, карнизы (свесы крыши): Не подшиваются Обшивается евровагонкой Обшивается евровагонкой
Кровельное покрытие: Ондулин. Цвет на выбор заказчика. Ондулин. Цвет на выбор заказчика. Металлочерепица ,толщина стали 0.45 мм. Цвет по RAL на выбор заказчика.
Вентиляционные решетки в чердачном пространстве: Не монтируются Не монтируются По 1 решетке на каждом фронтоне.
Окна, двери
Окна: Не устанавливаются Пластиковые окна Veka или Rehau , 1х1,2 метра с двойным остеклением. Пластиковые окна Veka или Rehau , 1х1,2 метра с двойным остеклением, с отливом, подоконником ПВХ и москитной сеткой
Межкомнатные двери: Не устанавливаются Из массива сосны 2х0,8 м на петлях без фурнитуры Из массива сосны 2х0,8 м на петлях без фурнитуры. Установка фурнитуры заказчика.
Входная дверь: Не устанавливается Из массива сосны 2х0,8 м на петлях без фурнитуры Металлическая 2х0,9 м, Россия
Внутренняя отделка
Отделка стен: Не выполняется Евровагонка сорта АВ камерной сушки Евровагонка сорта АВ камерной сушки
Отделка потолков: Не выполняется Евровагонка сорта АВ камерной сушки Евровагонка сорта АВ камерной сушки
Напольное покрытие: Не монтируется Шпунтованная доска сорта АВ толщиной 27-28 мм камерной сушки, на оцинкованные саморезы Шпунтованная доска сорта АВ толщиной 27-28 мм камерной сушки, на оцинкованные саморезы
Внутренние углы: Не отделываются Отделываются плинтусом Отделываются плинтусом
Наличники: Не монтируются Оконные и дверные проемы уголком сорта АВ камерной сушки Оконные и дверные проемы уголком сорта АВ камерной сушки
Наружная отделка
Отделка стен: Не выполняется Евровагонка сорта АВ камерной сушки Евровагонка сорта АВ камерной сушки
Вентилируемый фасад: Не монтируется Брусок 20х40мм Брусок 20х40мм
Наличники: Не монтируются Углы и оконные проемы евровагонкой сорта АВ камерной сушки Углы и оконные проемы евровагонкой сорта АВ камерной сушки
Отделка парной
Стены и потолок: Не отделывается Евровагонка ОСИНА сорта А камерной сушки на оцинкованные гвозди Евровагонка ОСИНА сорта А камерной сушки на оцинкованные гвозди
Полок: Не отделывается Осина Осина
Дверь: Не монтируются Клиновая Клиновая
Высота потолка в парной: 2 метра 2 метра 2 метра
Печь : Не устанавливается Рассчитывается отдельно Рассчитывается отдельно
Дополнительные услуги
Фундамент свайно-винтовой от 3 100 руб за сваю
Фундамент ЖБ сваи от 4 500 руб за сваю
Каркас из сухой строганной доски от 2 000 руб/кв.м
Покраска дома в один слой от 250 руб/кв.м
Электрика от 75 000 руб
Отопление от 140 000 руб
Канализация от 45 000 руб
Посмотрите, что говорят о нас наши реальные клиенты
Отзыв о строительстве дома
Отзыв о строительстве барнхауса
Отзыв о строительстве каркасного дома
Почему выбирают Дома 71
Скорость и качество
«Дома 71» строит каркасные дома в Туле под ключ, эти дома популярны благодаря своей безопасности, теплоэффективности и скорости постройки. Для них не нужен мощный фундамент, и цена на эти дома сравнительно невысока. Наша компания разработает для Вас функциональный дом или поможет воплотить в реальность Ваши идеи и решения.
Проверенный временем застройщик
Наша компания уже 10 лет строит каркасные дома в Туле под ключ. Строим в семейную и сельскую ипотеку от 3%. Каркасные дома, изготавливаемые по финской технологии, являются экологически чистыми, тёплыми, не горючими и влагоустойчивыми. При строительстве каркасных домов используются специальные безвредные пропитки.
Строительная компания «Дома 71» гарантирует фиксированные сроки строительства дома в Туле и Тульской область. С заказчиком заключается договор, в котором указывает дата сдачи каждого этапа строительства загородного дома или коттеджа. возможность контролировать ход строительства в течение реализации проекта.
Давайте обсудим ваш проект

Заполните форму ниже и мы свяжемся с вами в ближайшее время для ответа на все ваши вопросы.

Прикрепить файл
Заявка еще не отправлена
Дома 71
Контакты
Наш офис
г. Тула, ул. Жуковского, 58

Визит в офис только по предварительному согласованию с нашим менеджером по телефону!

Электронная почта
Время работы

По договоренности (требуется предварительный звонок)